Reconstrução Planejada: Vem ver a que pé estamos!

Após décadas de reformas e adaptações realizadas ao longo de 30 anos, estamos dando um passo essencial para a organização e documentação de nossa estrutura física. Para isso, contamos com o trabalho do engenheiro civil Lúcio Mota Marinho Júnior, que está organizando os projetos, elaborando orçamentos e estruturando as etapas da obra de reconstrução.

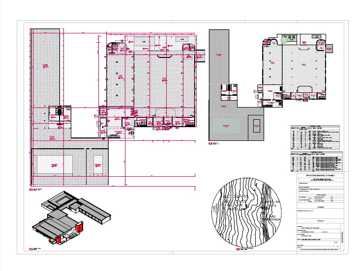
O marco inicial desse processo foi a elaboração do projeto arquitetônico, desenvolvido pela arquiteta Karoline Gonçalves Pereira. Apesar de já termos a construção consolidada, não contávamos com um projeto que documentasse de forma detalhada toda a estrutura.

Por que o projeto arquitetônico é tão importante?
Esse projeto não apenas organiza e documenta a configuração atual, mas também é uma ferramenta fundamental para futuras decisões e obras. Ele servirá como base para levantamentos complementares, como projetos elétricos e estruturais, ou qualquer outra intervenção que venha a ser necessária nesta gestão ou em patronagens futuras.

O projeto arquitetônico detalha aspectos essenciais como layout, divisões internas, acessos e distribuição de portas e janelas, garantindo que todas as reformas e ampliações sejam feitas com planejamento e embasamento técnico. Além disso, ter tudo documentado contribui para a organização administrativa e facilita futuras manutenções.

A comoção gerada pela situação atual e pelo incêndio é visível na colaboração e solidariedade dos profissionais envolvidos. Muitos têm nos ajudado de forma significativa, seja com redução de valores ou com outros tipos de auxílio, demonstrando o impacto que essa reconstrução tem para toda a comunidade.

Você acha que pode nos ajudar?
Se você tem uma loja, presta serviços ou dispõe de mão de obra especializada, sua colaboração pode fazer toda a diferença para o andamento dessa reconstrução. Seja por meio de materiais, serviços ou qualquer outra forma de apoio, toda ajuda é bem-vinda e nos aproxima do objetivo de devolver esse espaço à comunidade. Entre em contato e saiba como contribuir!

As próximas etapas já estão em andamento. Atualmente, todos os orçamentos para os projetos elétricos, estruturais e o Plano de Prevenção e Combate a Incêndios estão sendo realizados. Em breve, teremos uma estimativa completa dos valores da obra de reconstrução e também a definição da data de início.